Villa singola in vendita

Toscolano-Maderno, Via Oleandri - Maclino
Informazioni in agenzia
6 locali 6 locali
100 Mq 100 Mq
3 bagni 3 bagni

Villa singola in vendita

Toscolano-Maderno, Via Oleandri - Maclino

Descrizione annuncio

TERRENO EDIFICABILE CON PROGETTO APPROVATO

COSA SAPERE DELL'IMMOBILE

La soluzione che vi proponiamo in vendita è un terreno edificabile sito nella prestigiosa Via degli Oleandri a Maclino, una zona con una vista unica.

Viene venduto con il terreno un progetto approvato per la costruzione di una moderna e lussuosa villa singola sviluppata su tre livelli.

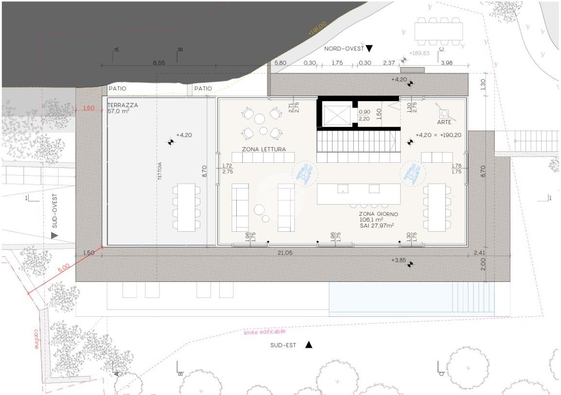
Al piano rialzato vi sono tre camere da letto matrimoniali, due delle quali con bagno en suite, un bagno padronale, una toilette di servizio, una lavanderia ed una zona wellness, il tutto con accesso alla terrazza vista lago ed infinity pool.

Al piano primo troviamo la zona giorno con cucina open space e sfogo sull’ampia terrazza vista lago.

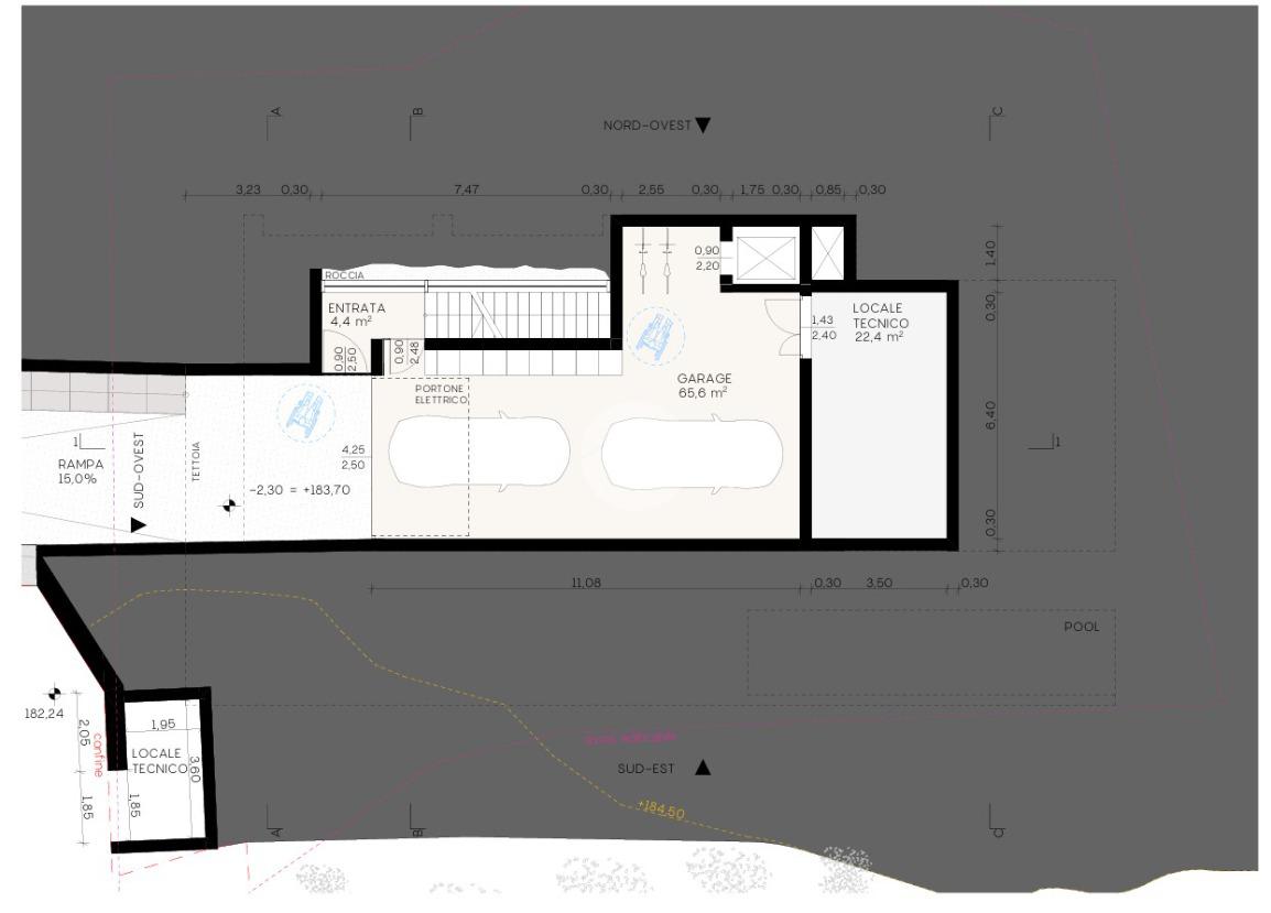
Nell'interrato ci sono un box doppio e locale tecnico.

La proprietà è circondata da circa 9800 mq di terreno.

Si tratta di una soluzione unica nel suo genere, data la posizione, la vista e gli spazi realizzabili.

-

Baugrundstück in Maclino, einer über dem See gelegenen Gegend mit einzigartiger Aussicht.

Mit dem Grundstück wird ein genehmigtes Projekt für den Bau einer modernen und luxuriösen Einzelvilla.

Im Hochparterre befinden sich drei Doppelzimmer, zwei davon mit eigenem Bad, ein Hauptbadezimmer, eine Gästetoilette, eine Waschküche und ein Wellnessbereich, alle mit Zugang zur Terrasse mit Seeblick und Infinity-Pool.

Im ersten Stock befindet sich der Wohnbereich mit offener Küche und Zugang zur großen Terrasse mit Seeblick.

Abgerundet wird das Projekt durch ein Untergeschoss mit Doppelgarage und Technikraum. Das Anwesen ist von ca. 9800 m² Grundstück umgeben.

-

Building plot located in Maclino, an area overlooking the lake with unique views.

The plot is sold with an approved project for the construction of a modern and luxurious detached villa on three levels.

On the mezzanine floor there are three double bedrooms, two of which with en-suite bathrooms, a master bathroom, a guest toilet, a laundry room and a wellness area, all with access to the terrace overlooking the lake and infinity pool.

On the first floor, there is a living area with an open-plan kitchen and access to the large terrace overlooking the lake.

Finally, the project includes a basement with a double garage and a utility room.

The property is surrounded by approximately 9,800 square metres of land.

This is a unique solution, given its location, views and potential space.

Mostra tutto

Nelle vicinanze

Trasporto pubblico Trasporto pubblico
Trasporto pubblico
870 m
Gardone Riv. Casino
Gardone Riv. Casino
1,6 Km
Maderno
800 m
Fasano
940 m
Ricariche auto elettriche Ricariche auto elettriche
Gardauno Gardone
2,8 Km
Scuole Scuole
Asilo di Toscolano Maderno
1,3 Km
Scuole Elementari Toscolano Maderno
1,6 Km
Scuola Superiore di Primo Grado Gabriele di Pietro
2,2 Km
Scuola Secondaria di Primo Grado Giovanni XXIII
2,5 Km
Scuola Primaria di Gardone Riviera
2,7 Km
Farmacia Farmacia
Farmacia Gloria
950 m
Farmacia
1,9 Km
Farmacia Internazionale
2,8 Km
Ospedali Ospedali
Casa di Cura Villa Gemma
1,5 Km
Supermercati Supermercati
Auchan Supermercato
990 m
Supermercati
1,3 Km
Migross
1,8 Km
Negozi Negozi
Abbigliamento Lori di Ferrara Laura
910 m
Negozi
1,0 Km
Bar Bar
Carta Bianca
260 m
Bar Ciringhito
1,3 Km
Casinò Lounge
1,9 Km
Bar Deby
1,9 Km
Pianobar La Torre
2,2 Km
Ristoranti Ristoranti
Hotel Villa Trattoria Belvedere
140 m
Rustichel
260 m
Trattoria La Tana Di Bertella
770 m
Il Giglio
830 m
Pizzeria Ristorante La Bussola
840 m
Mostra tutto

Caratteristiche

Rif.:
61140382
Piano:
1 di 3 (Piano su più livelli)
Box:
1
Posti auto:
2
Terrazzi:
1
Camere da letto:
3
Mostra tutto
Prezzo Prezzo
Informazioni in agenzia
Spese annue Spese annue
€ 0
Proponi il tuo prezzoProponi il tuo prezzo

Classe Energetica

Questo immobile è esente da classe energetica
Anno di costruzione:
2025
Riscaldamento:
Autonomo
Tipo impianto:
A pavimento
Tipo alimentazione:
Metano

Ti interessa visionare l'immobile?

Fissa un appuntamento  Fissa un appuntamento

Richiedi informazioni

Clicca su Leggi per aprire l'informativa
* Questi campi sono obbligatori
Affiliato
Tecnogarda Srl
Via Statale Toscolano, 134 25088 Toscolano-Maderno (BS)

Il nostro staff


  • Andrea Merigo
    Coordinatore

  • Alice Nichele
    Affiliata

  • Silvia Maria Franca Oretti
    Collaboratrice
Via Statale Toscolano, 134 25088 Toscolano-Maderno (BS)
Zona: Toscolano Maderno
Mostra su mappa
Affiliato
Tecnogarda Srl
Via Statale Toscolano, 134 25088 Toscolano-Maderno (BS)

2026 Tecnocasa Franchising S.p.A. - P. IVA 08365160152 - Via Monte Bianco 60/A 20089 Rozzano (MI). Ogni agenzia ha un proprio titolare ed è autonoma. Privacy policy | Policy utilizzo | Cookie policy